Shanmuga Builders Ambattur is a thoughtfully designed residential project offering a premium living experience in a compact and exclusive community. Spread across 0.07 acres, the project consists of 1 building with 8 well-planned units, ensuring privacy and a peaceful environment for residents.
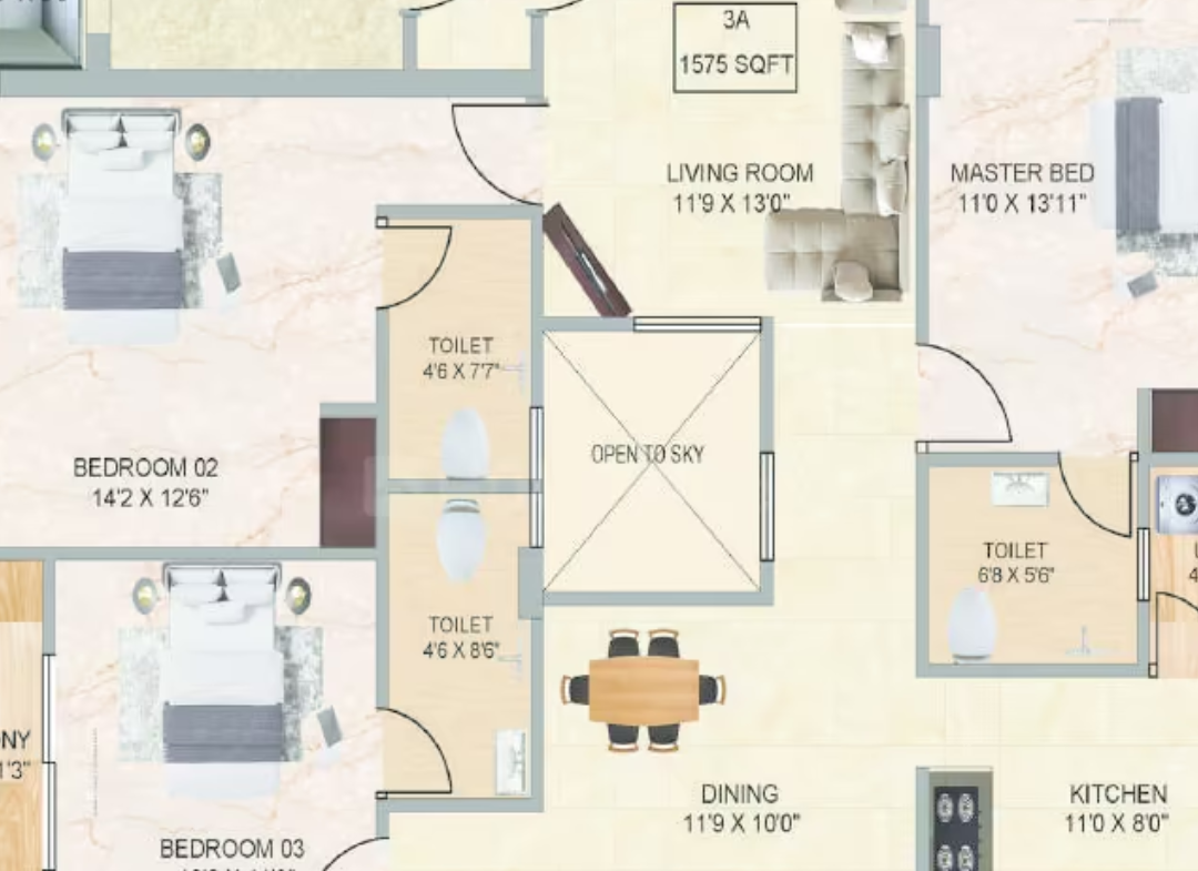
The apartments are available in 2 & 3 BHK configurations, with sizes ranging from 940 sq.ft. to 1575 sq.ft., making them ideal for both small and medium-sized families. Designed with efficient space utilization and modern layouts, each home provides comfort, ventilation, and functionality.
The project was launched in February 2025, with possession starting from April 2026. The average pricing is approximately ₹6.5K per sq.ft, offering excellent value for a premium residential development.
Shanmuga Mahatma Enclave is perfect for homebuyers looking for a limited-unit apartment project that combines convenience, affordability, and quality construction in a serene setting.
For more follow on Instagram



